Northeast Country Homes

CAPE FLOOR PLANS
946 to 1,041 Square Feet.

 Cape Campden floor plan Cape Campden
946 Sq. Ft. - Plan No. 105

The Quaint design of spacious comfort with two bedrooms, full bath, large kitchen/dining area and generous living room. Also available in 26' width.


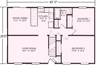
Cape Cod floor plan Cape Cod
1,040 Sq. Ft. - Plan No. 231

Featuring a grand living room and opened kitchen and dining area, this cape offers tremendous space. Two large bedrooms and generous bath perfectly accommodate family or quests. Also available in 27' 6" width


Cape Chester floor plan Cape Chester
1,040 Sq. Ft. - Plan No. 232

Cozy and comfortable best describe this cape with welcoming foyer, living room, dining room and spacious kitchen. Also available in 27' 6" width.


Cape Auburn floor plan Cape Auburn
1,041 Sq. Ft. - Plan No. 107

Distinctive living with immense living room opening into a formal dining room and expansive kitchen with island. Two spacious bedrooms with ample closet space and two full baths. Also available in 26" width.

Back to top of page

Go back to Capes Style page or MODULAR PAGE

E-mail: sduga@earthlink.net