TWO STORY FLOOR PLANS
1,325 TO 1,760 Square Feet.

The Norwood
1,325 Sq. Ft. - Plan No. 501
Offering space and privacy for family or guests, this home features three large bedrooms with generous closet space, spacious bath and expansive living room. Also available in 26' width.

The Franklin
1,540 Sq. Ft.- Plan No.507
Convenience and features that make a house a home, such as large master bedroom with three quarter bath, two additional bedrooms, one and one half baths, with first floor laundry area, spacious kitchen, and formal dining room.

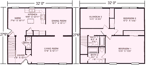
The Freeport
1,760 Sq. Ft. - Plan No. 508
Welcome home to comfort with a master bedroom with full bath, two additional bedrooms, one and one half baths, large kitchen with island, formal dining room, elegant foyer and spacious living room.
Back to top of page
Go back to Two Story Style Homes or MODULAR PAGE
|